• PROJECTS
  • About
  • Contact

CAROLINE COMPTON

  • PROJECTS
  • About
  • Contact

Serene Hotel: Guest Suites and Lobby

Concept Statement:

Inspired from the city of Santorini Greece, the lobby and residences of The Serene Hotel will feel bright, calming and uplifting. Focusing on white structural elements, light washed flooring and ceiling beams. Incorporating pops of color through accents such as bedding, wallpaper, and rugs. Greenery will be included in the space to create a refreshing aroma. Walking through the front doors of The Serene Hotel you will experience a feeling full of tranquility and peace.

Double Bedroom Residence
Double Bathroom
Bedroom Materials.jpg
Bathroom MAterials.jpg
Concept Board
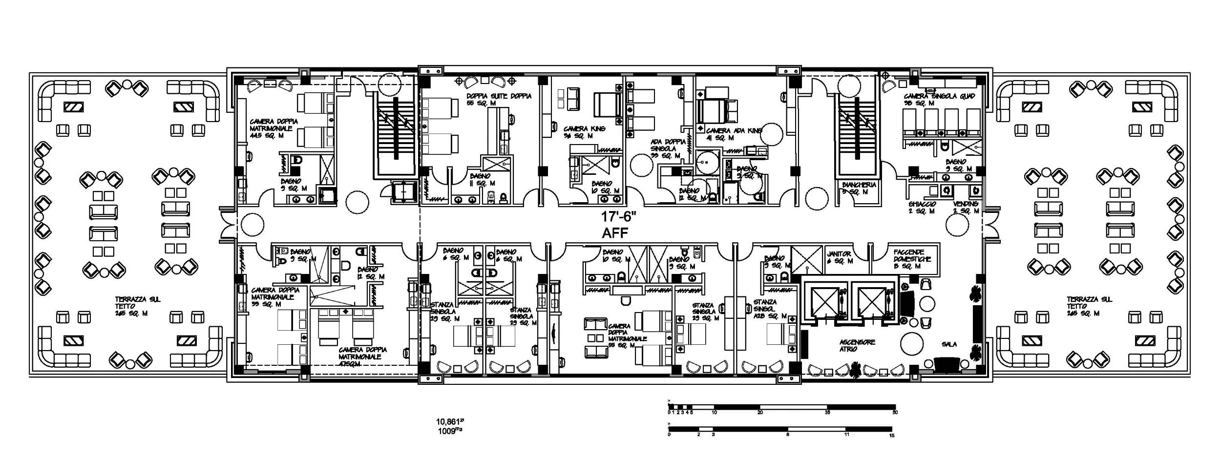
Third Floor Floor Plan
Partial Hallway Elevation
Double Room Key Plan

Powered by Squarespace.