• PROJECTS
  • About
  • Contact

CAROLINE COMPTON

  • PROJECTS
  • About
  • Contact

NAPLES, ITALY HOTEL

Hotel Restaurant
Hotel Bar
Hotel Bar Elevation
Restaurant, Bar, and Lounge Furniture Plan
First Floor Fire Evacuation Plan
Project Board 1
Project Board 2
HOTEL CONCEPT BOARD FOR LOBBY AND ROOMS
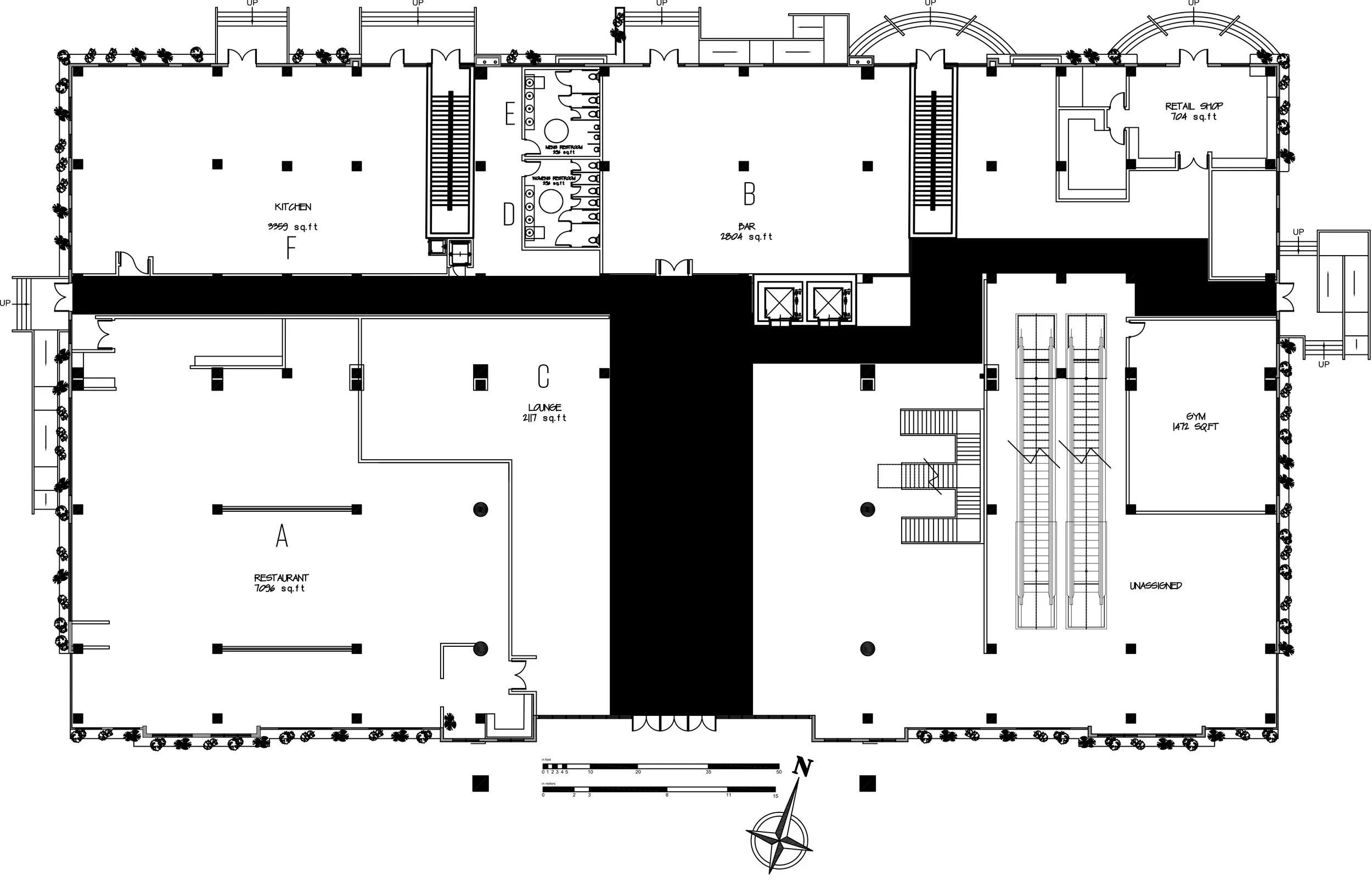
FIRST FLOOR, FLOOR PLAN
dOUBLErOOMHOTEL 2018-04-17 10241000000.jpg
BEDROOM FF&E
dOUBLErOOMHOTEL 2018-04-16 12191400000 2.jpg
DOUBLE BATHROOM FF&E
DOUBLE DOUBLE BEDROOM
THIRD FLOOR PARTIAL ELEVATION OF CORRIDOR
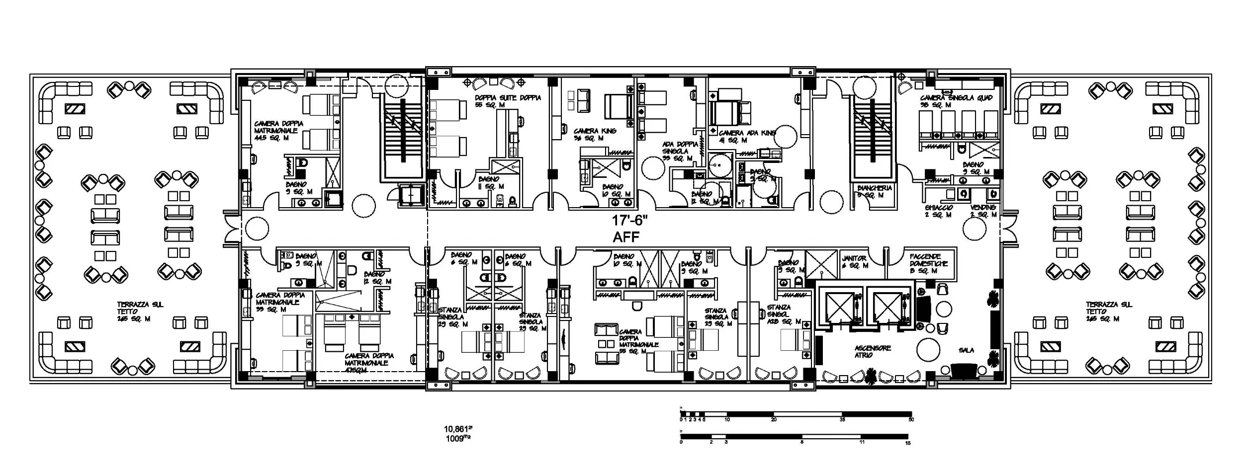
THIRD FLOOR, FLOOR PLAN (ITALIAN, METRIC)
PET STORE  PERSPECTIVE
PET STORE PERSPECTIVE
FINAL BOARD ONE
BOARD TWO
FINAL BOARD THREE
LIGHTING PLAN
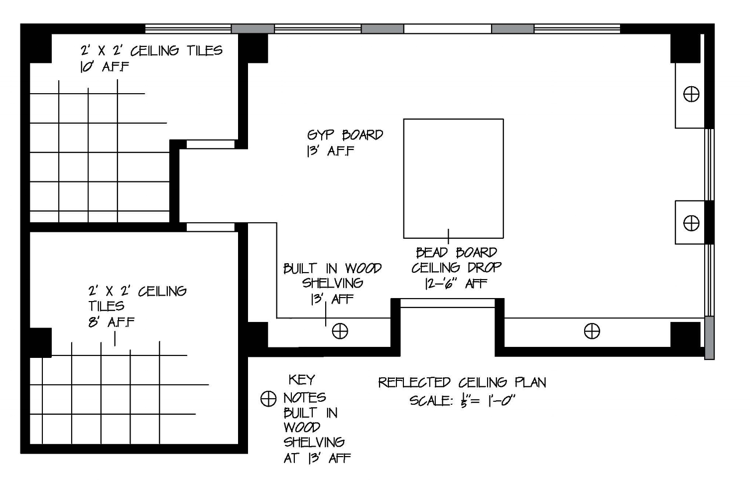
REFLECTED CEILING PLAN
LOBBY FLOOR DESIGN
LOBBY FLOOR DESIGN TWO WAY COLOR RENDERING

Powered by Squarespace.